Borrar
Edificio de acceso actual de la piscina municipal de verano de Miajadas CEDIDA

Las nuevas obras de la piscina de verano cuentan con un presupuesto de 275.000 euros

iniciativas municipales ·

Éstas consistirán en la construcción de nuevos vestuarios y del edificio de acceso

Domingo, 13 de febrero 2022, 16:19

La construcción de nuevos vestuarios y del edificio de acceso a la piscina de verano de Miajadas, cuyo plazo de licitación está abierto hasta las 15:00 del 23 de febrero, contará con un presupuesto de 274.610,42 euros.

Un presupuesto financiado en 125.000 euros por ADICOMT (45,52%) y en 149.610,42 euros por el Ayuntamiento de Miajadas (54,48%).

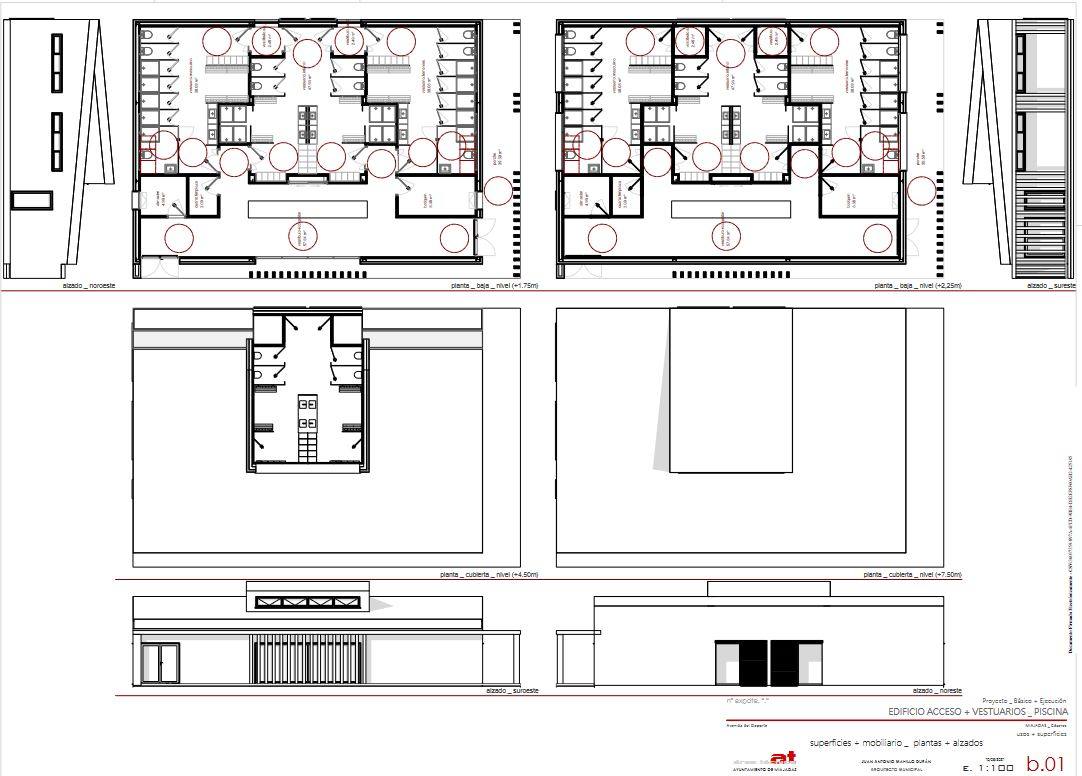
La obra del nuevo edificio de acceso se desarrollará en una única planta y el acceso al mismo se realizará desde la Avenida del Deporte en la misma ubicación en la que se sitúa el acceso actual, ubicándose entre los vestuarios actuales y la piscina climatizada, en la zona en la que se encuentra actualmente la pista de voleibol. En su ubicación se ha tenido en cuenta la ampliación de la piscina climatizada con un nuevo vaso de aprendizaje en el futuro.

Licitación

En lo referente a las obras de los nuevos vestuarios, se ha estimado la creación de tres vestuarios: femenino, masculino y uno destinado a niños. En cada uno de los vestuarios se dispone una zona de lavabos, duchas, inodoros y zona de taquillas y vestuario. En el caso de los vestuarios masculinos y femeninos una de las cabinas será accesible para discapacitados. El vestuario de los niños está concebido con la idea de que las madres y padres puedan acompañar a sus hijos a ducharse y cambiarse, y a su vez que los niños no compartan vestuario con adultos.

Las empresas interesadas en presentar ofertas pueden acceder a la licitación a través del enlace Licitación obras piscina verano Miajadas Plataforma de Contratación del Estado

Plano de los nuevos vestuarios de la piscina municipal de verano de Miajadas A.M.

Publicidad

Publicidad

Publicidad

Publicidad

Esta funcionalidad es exclusiva para suscriptores.

Reporta un error en esta noticia

* Campos obligatorios

hoy Las nuevas obras de la piscina de verano cuentan con un presupuesto de 275.000 euros

Las nuevas obras de la piscina de verano cuentan con un presupuesto de 275.000 euros